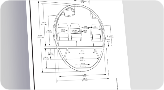
AIRPORT PLANNING MANUAL 0.86 m (3 ft) 2.00 m (6 ft 7 in.) 0.6 m 0.69 m (1 ft 10 in.) (2 ft 3 in.) 1.44 m 0.20 m 0.51 m 0.07 m (4 ft 9 in.) (8 in.) (1 ft 8 in.) (3 in.) 1.1 m 3.35 m (3 ft 8 in.) (11 ft 0 in.) 0.61 m (2 ft) 1.66 m 0.45 m (5 ft 5 in.) (1 ft 6 in.) 0.94 m 2.72 m (3 ft 1 in.) (8 ft 11 in.) 0.75 m (2 ft 5 in.) 2.74 m (9 ft) 3.01 m (9 ft 11 in.) EM170APM020002A.DGN First Class Passenger Cabin Cross-Section Figure 2.5 EFFECTIVITY: ALL Section 2 Page 2-12 Dec18/04 w-apm1346
Airport Planning Manual Page 37 Page 39